
Maringotka - Sedlovka 6,6m
Sedlovka 6,6 m navazuje na oblíbený model 6 m, ale přidává ještě víc prostoru a pohodlí pro delší pobyty i celoroční využití. Klasický vzhled se sedlovou střechou doplňují moderní prvky a velké okno, které interiéru dodává spoustu denního světla a příjemně „otevřený“ pocit.
Díky prodloužené délce nabízí Sedlovka 6,6 m více místa pro komfortnější spaní, praktičtější kuchyňský kout i úložné řešení – zkrátka lepší zázemí bez kompromisů. Ideální volba pro ty, kteří chtějí útulný, estetický a funkční prostor pro relax v přírodě, na zahradě nebo jako stylové ubytování pro hosty. Stejně jako u kratší verze může být i tento model vybaven soběstačným OFF-GRID systémem, takže si užijete klid a nezávislost kdekoliv.
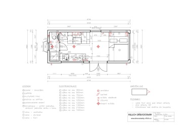
Dispozice Maringotky
Vnitřní rozměr: 6434x2388mm
Vnější rozměry: 6828x2778mm
Užitná plocha: 15 m²
Výkresová a technická specifikace
Fotogalerie
Referenční fotky - pro výběr dekorů
Naši zákazníci
Ceník Maringotky
*Ceny jsou uvedeny včetně DPH 21%. Cena platí pro variantu půdorysu 1.
Základní stavba
1 185 000Kč
Tato varianta představuje samotnou stavbu včetně oken, dveří a stěn s povrchovou úpravou.
Základní vybavení
1 439 000Kč
Tato varianta zahrnuje:
Základní stavba
elektroinstalace
Rozvod vody
Kompletní koupelna
K nastěhování
1 604 000Kč
Tato varianta obsahuje vše z předchozí varianty a navíc:
Kuchyňský kout
Manželská postel
Tepelné čerpadlo (vzduch/vzduch)
Maximální vybavení
1 731 000Kč
Tato varianta obsahuje vše z předchozí varianty a navíc:
Kamna včetně kouřovodu
Veškerý nábytek
Seznamte se s uspořádáním Maringotky
Naši zákazníci

Přijeďte se k nám podívat,
a uvidíte jak maringotky ožívají.
Osobní prohlídky jsou možné ve všední dny od 7:30 do 15:30 po předchozí domluvě.

Technická specifikace
Podlaha
Dřevěná rámová konstrukce o tloušťce 100 mm s PIR izolací. Posazená na podvozku určeným k jízdě po silnici.
Zespod chráněna fóliovanou vodovzdornou překližkou.
Shora zakončená OSB deskou 10mm a PVC podlahovou krytinou.
Stěna
Od vnitřní strany je interiérový obklad ze smrkových palubek 12,5mm.
Stěny jsou tvořeny rámovou konstrukcí z KVH hranolů o šířce 80mm a ta je vyplněna PIR izolací.
Finálně pak obložíme stěnu palubkou Thermowood.
Strop
Od vnitřní strany je smrková palubka 12,5mm.
Střešní konstrukce je tvořena lepenými smrkovými oblouky o síle 80mm. Prostor mezit oblouky je vyplněný PIR izolací.
Na střešní konstrukci příjde pobití ze smrkové palubky 12,5mm, na palubky přijde paropropustná fólie a na ní již finální hliníková falcovaná kritiny v barvě antracit (RAL 7016)
Dřevěná eurookna s tvrzeným dvojsklem
Kování a okapničky v černé barvě.
100% parotěsný systémový obklad do koupelen spojovaný na pero drážku
překližka s HPL laminátem (vysokotlaký laminát)
obklad je velmi jednoduše omyvatelný
Korpusy nábytku jsou ve standardu ze smrkové biodesky, dvířka z dýhované předkližky (u dvířek dosauje větší tvarové stálosti než biodeska). Pracovní desky a nášlapové plochy jsou pak z tvrdé bukové spárvky, kterou lze nahradit jasanovou spárovkou (obě dřeviny dosahují srovnatelných kvalit a jde tedy pouze o to co upřednostníte z vizuelního hlediska). Je třeba počítat s tím, že dřevo na pracovní desce vyžaduje údržbu a šetrné zacházení, v případě, že chcete povrch, který bude bezúdržbový doporučujeme zvolit laminátovou DTD desku.
Pokud nemáte přípojku na elektřinu, vodu a odpad, je možné využít ostrovní solární systém, plyn jako pohon spotřebičů, nádrž na vodu a separační záchod pro správné nakládání s odpadem.
více o soběstačném systému najdete zde --> Offgrid
Poptat Maringotku
Na základě vyplněného formuláře vypracujeme cenovou kalkulaci na váš projekt a začneme se domlouvat na dalším postupu.
















