
Modulová dřevostavba - Chata
Představujeme naši modulovou chatu, ideální útočiště pro ty, kteří hledají útulný a kompaktní prostor uprostřed přírody. Tato chata je navržena tak, aby poskytovala maximální pohodlí a funkčnost na menším prostoru a přitom zůstávala v harmonii s okolním prostředím.
Interiér chaty je promyšleně navržen s důrazem na efektivitu prostoru, vzdušnost otevřené sedlové střechy a maximální pohodlí. Plně vybavená kuchyně, oddělená ložnice, druhá postel v patře a plně vybavená koupelna s pračkou. Velká okna a možnost přístupu na venkovní terasu zajišťují dostatek světla a spojení s přírodou.
Exteriér chaty je jednoduchý, s důrazem na udržitelné materiály a minimální dopad na okolní prostředí. Tato chata je ideální pro ty, kteří hledají únik od každodenního shonu a chtějí se ponořit do klidu a krásy přírody.
Ať už hledáte místo pro víkendové úniky nebo trvalé bydlení v menším měřítku, naše modulová chata nabízí dokonalou rovnováhu mezi pohodlím, funkčností a respektem k přírodě.
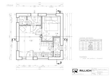
Dispozice dřevostavby
Vnitřní rozměr: 6042x6042mm
Vnější rozměry: 6800x6800mm
Užitná plocha: 46 m² (přízemí 33m² + loft 13m²)
Virtuální prohlídka
Výkresová a technická specifikace
Fotogalerie
Referenční fotky - pro výběr dekorů
Naši zákazníci
Ceník dřevostavby
*Ceny jsou uvedeny bez DPH. U modulových staveb se sazba stanovuje podle způsobu využití. Sazba DPH pro objekty k bydlení činí 12% a pro rekreaci 21%.
Cena platí pro variantu půdorysu 1.
Hrubá stavba
1 237 900Kč
U této varianty pro vás připravíme kompletní hrubou stavbu, na které můžete dál pracovat sami. Postaráme se o projekt, případně i stavební povolení, vyrobíme zaizolovanou a střechou zakrytou stavbu, přivezeme ji na váš pozemek a usadíme na připravené základy.
Od té chvíle je prostor váš – interiér, povrchy i vybavení si můžete dotvořit podle svých představ a vlastním tempem.
Na klíč
2 019 300Kč
Tato varianta zahrnuje:
Základní stavba
Elektroinstalace
Rozvod vody
Kompletní koupelna s keramickou dlažbou a s elektrickým podlahovým vytápěním
Podlahová krytina
Tepelné čerpadlo vzduch/vzduch + fotovoltaika
Žebřík do loftu
K nastěhování
2 117 000Kč
Tato varianta obsahuje vše z předchozí varianty a navíc:
Kuchyňský kout
Maximální vybavení
2 366 900Kč
Tato varianta obsahuje vše z předchozí varianty a navíc:
Kamna včetně kouřovodu
Veškerý nábytek
Schodoskříň
Položky kalkulované v návaznosti na pozemek (odhad):
Zemní vruty - 130 000Kč
Zemní tahová zkouška - 20 000Kč
Jeřáb - 70 000Kč
Náklady spojené s projektovou dokumentací a vyřízení povolení - 80 000Kč
Doprava:
do 100 km z výroby- 70 000Kč
do 200 km z výroby - 90 000 Kč
nad 200 km z výroby - 110 000 Kč
Práce kolem usazení na pozemek:
do 100 km z výroby- 90 000 Kč
do 200 km z výroby - 110 000 Kč
nad 200 km z výroby - 120 000 Kč
Seznamte se s uspořádáním dřevostavby
Naši zákazníci

Virtuální prohlídka
Přijeďte se k nám podívat,
a uvidíte jak tiny houses ožívají.
Osobní prohlídky jsou možné ve všední dny od 7:30 do 15:30 po předchozí domluvě.

Technická specifikace
Podlaha
Od spodní strany skladba začíná deskou Glasroc X, která má spoje prolepené těsnící páskou a je po obvodu chráněna podkladem z impregnopvaných prken. Prkna zároveň slouží jako podkladní a propojovací materiál mezi zemními vruty a stavbou.
Navazuje dřevěná rámová konstrukce o síle 200mm, která je vyplněná izolací ISOVER UNI.
Přes hlavní nosnou konstrukci je rastr z KVH, který je vyplněný izolačními PIR deskami.
Rastr pak zaklopíme OSB deskou 18mm a přes ní příjde ještě 12mm a obě desky jsou pro maximání stabilitu jerště prolepené PUR lepidlem. Vrstva desek zároveň slouží jako parobrzdný materiál.
Stěna
Od vnitřní strany je interiérový obklad ze smrkových palubek 15mm (lze nahradit smrkovou biodeskou, nebo obkladovou Rigistabil deskou). Pod vnitřním obkladem je instalační mezera 80mm, která je vyplněna izolací ISOVER UNI
Mezi instalační mezerou a hlavní rámovou konstrukcí, je OSB deska 12mm, ktereá plní funkci parobrzdného materiálu.
Hlavní nosná část stěny je z KVH hranolů o šířce 180mm a ta je vyplněna izolací ISOVER UNI.
Rámová konstrukce je z exteriéru zaklopena konstrukční deskou Rigistabil 12,5mm a následně se celá stavba zabalí do paropropustné fólie (150g/m2).
V dalším kroku zhotovýme rastr z latí pro odvětrávanou mezeru o šířce 80mm.
Finálně pak obložíme stěnu palubkou Thermowood (tepelně upravená borovice).
Strop
Od vnitřní strany je v principu stejná skladba jako stěna až po Rigistabil desku a parobrzdnou fólii s vyjímkou síly instalační mezery, která je 60mm a stěny, která je 200mm. V součtu je ale stejně jako ve stěně 260mm Izolace.
Po zabalení stavby do paropropustné fólie uděláme rastr z latí 40mm a ten zaklopíme OSB deskou 15mm
Na OSB desku přijde fólie a na ní již finální hliníková falcovaná kritiny v barvě antracit (RAL 7016)
Dřevěná eurookna
Profil IV78 trojsklo
Kování a okapničky v černé barvě
100% parotěsný systémový obklad do koupelen spojovaný na pero drážku
překližka s HPL laminátem (vysokotlaký laminát)
obklad je velmi jednoduše omyvatelný
Korpusy nábytku jsou ve standardu ze smrkové biodesky, dvířka z dýhované překližky (u dvířek dosahuje větší tvarové stálosti než biodeska). Pracovní desky a nášlapové plochy jsou pak z tvrdé bukové spárovky, kterou lze nahradit jasanovou spárovkou (obě dřeviny dosahují srovnatelných kvalit a jde tedy pouze o to co upřednostníte z vizuelního hlediska). Je třeba počítat s tím, že dřevo na pracovní desce vyžaduje údržbu a šetrné zacházení, v případě, že chcete povrch, který bude bezúdržbový doporučujeme zvolit laminátovou DTD desku.
Pokud nemáte přípojku na elektřinu, vodu a odpad, je možné využít ostrovní solární systém, plyn jako pohon spotřebičů, nádrž na vodu a separační záchod pro správné nakládání s odpadem.
více o soběstačném systému najdete zde --> Offgrid
Poptat dřevostavbu
Na základě vyplněného formuláře vypracujeme cenovou kalkulaci na váš projekt a začneme se domlouvat na dalším postupu.






















