
Tiny house Pulťák 9m
SKLADEM
Tiny house Pulťák 9 m je prostorný dům na kolech s pultovou střechou a velkým obytným prostorem orientovaným do výhledu. Tahle Skladovka je kompletně připravená k celoročnímu bydlení – s plnohodnotnou kuchyní, koupelnou, loftem přístupným přes schodoskříň, vytápěním tepelným čerpadlem doplněným kamny a nábytkem z naší truhlárny. Dům je hotový a po domluvě připravený k rychlému předání, dopravě a usazení na váš pozemek nebo do glampingového areálu.
Cena skladovky 2 044 000 Kč
Cena je včetně DPH 21%
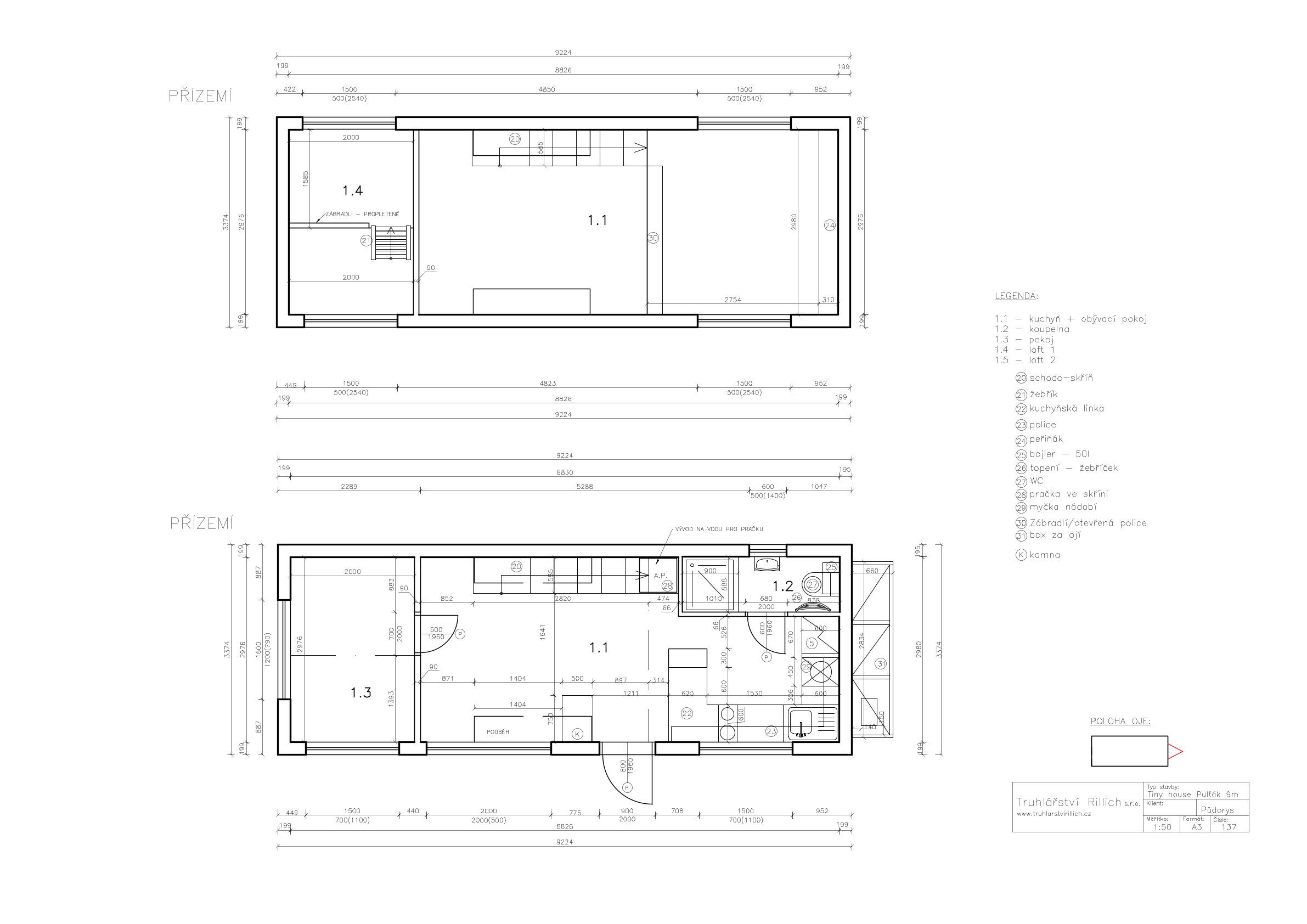
Dispozice Tiny house
Vnitřní rozměr: 8830x2976mm
Vnější rozměry: 9224x3374mm
Užitná plocha: 39 m² (přízemí 27m² + loft 12m²)
Virtuální prohlídka
Výkresová a technická specifikace
Fotogalerie
Naši zákazníci
Seznamte se s uspořádáním Tiny house
Technická specifikace
Podlaha
Kovový podvozek je součástí podlahy.
dřevěná rámová konstrukce zabudovaná v kovovém podvozku o tloušťce 100 mm standartně izolovaná minerální vatou ISOVER UNI (v rozšířené variantě lze použít PIR desky).
Zespod chráněna deskami Rigips – Glasroc X.
Shora zakončená OSB deskou 15mm a PVC podlahovou krytinou (v rozšířené variantě lze použít laminátovou, nebo dubovou 3vrstvou podlahu).
Stěna
Od vnitřní strany je interiérový obklad ze smrkových palubek 15mm (lze nahradit smrkovou biodeskou).
Mezi interiérovým obkladem a rámovou konstrukcí je OSB deska 12mm, která slouží jako parobrzda.
Stěny jsou tvořeny rámovou konstrukcí z KVH hranolů o šířce 100mm a ta je vyplněna izolací ISOVER UNI (v rozšířené variantě lze použít PIR desky).
Rámová konstrukce je z exteriéru zaklopena konstrukční deskou Rigistabil 12,5mm a následně se celá stavba zabalí do paropropustné fólie (150g/m2).
V dalším kroku zhotovýme rastr z latí pro odvětrávanou mezeru o šířce 40mm.
Finálně pak obložíme stěnu palubkou Thermowood (tepelně upravená borovice).
Strop
Od vnitřní strany až po Rigistabil a paropropustnou fólii je skladba stejná jako u stěna.
Po zabalení stavby do paropropustné fólie uděláme rastr z latí 20mm a ten zaklopíme OSB deskou 15mm
Na OSB desku přijde fólie a na ní již finální hliníková falcovaná kritiny v barvě antracit (RAL 7016)
Dřevěná eurookna
Profil IV78 trojsklo
Kování a okapničky v černé barvě
100% parotěsný systémový obklad do koupelen spojovaný na pero drážku
překližka s HPL laminátem (vysokotlaký laminát)
obklad je velmi jednoduše omyvatelný
Korpusy nábytku jsou ve standardu ze smrkové biodesky, dvířka z dýhované předkližky (u dvířek dosauje větší tvarové stálosti než biodeska). Pracovní desky a nášlapové plochy jsou pak z tvrdé bukové spárvky, kterou lze nahradit jasanovou spárovkou (obě dřeviny dosahují srovnatelných kvalit a jde tedy pouze o to co upřednostníte z vizuelního hlediska). Je třeba počítat s tím, že dřevo na pracovní desce vyžaduje údržbu a šetrné zacházení, v případě, že chcete povrch, který bude bezúdržbový doporučujeme zvolit laminátovou DTD desku.
Pokud nemáte přípojku na elektřinu, vodu a odpad, je možné využít ostrovní solární systém, plyn jako pohon spotřebičů, nádrž na vodu a separační záchod pro správné nakládání s odpadem.
více o soběstačném systému najdete zde --> Offgrid
Naši zákazníci

Přijeďte se k nám podívat,
a uvidíte jak tiny houses ožívají.
Osobní prohlídky jsou možné ve všední dny od 7:30 do 15:30 po předchozí domluvě.













